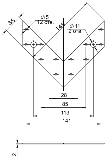
Угловой соединитель 145*145*35*2.0 мм
Описание:
Изделие выполнено из оцинкованной стали высокого качества, толщина листа которой составляет 2 мм. В пластине выполнены универсальные отверстия диаметром 5 и 11 мм. Изделие используется для углового соединения брусьев и досок под углом 90 градусов, в одной плоскости.
Габаритные характеристики

Покупая крепежные изделия в интернет-магазине "Металлинк", Вы можете быть уверены в надежности соединений и долговечности вашей строительной конструкции.







